BZ41W不銹鋼保溫閘閥主要用于石油、化工、冶金、制藥等各類系統中,該閥門的夾套焊裝于閥門的兩法蘭之間,閥門的側面、底部設置有夾套的連接口,夾套中可自由地流過蒸汽或其它熱的保溫介質,確保粘稠介質可順暢地流過閥門。
執行標準:
設計與制造:GB12234
法蘭尺寸:JB/T79 GB9113
壓力溫度:GB9131
結構長度:GB12221
檢驗與試驗:GB13927

BZ41H/W保溫閘閥主要零件材料
| 零件材料 | 材料 | ||
| BZ41Y-16I-25I-40I | BZ41Y-16I-25I-40I | BZ41Y-16I-25I-40I | |
| 閥體、閥造 | 鉻鉬鋼 | ||
| 閥板 | 合金鋼+硬質合金 | 鉻鎳鈦鋼 | 鉻鎳鉬鈦鋼 |
| 閥桿 | 合金鋼 | ||
| 閥桿螺母 | 鋁鐵青銅 | ||
| 手輪 | 灰鑄鐵、可鍛鑄鐵 | ||
| BZ41H/W保溫閘閥性能規范 |
| 型號 | 公稱壓力 | 工作溫度℃ | 適用介質 | |||
| 強度(水)(MPa) | 密封(水)(MPa) | 低壓密封(空氣)(MPa) | ||||
| BZ41H-16C BZ41W-16P(R) |
1.6 | 2.4 | 1.8 | 0.6 | ≤200 | 酸、堿類 |
| BZ41W-25P(R) | 2.5 | 3.8 | 2.8 | 0.6 | ≤200 | 酸、堿類 |
| BZ41W-40P(R) | 4.0 | 6.0 | 4.4 | 0.6 | ≤200 | 酸、堿類 |
| BZ41W-64P(R) | 6.4 | 9.6 | 7.0 | 0.6 | ≤200 | 酸、堿類 |
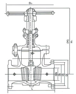
| BZ41H/W保溫閘閥外形尺寸和連接尺寸 |
| 型號 | 公稱通徑DN | 尺寸 | |||||||
| L | D | D1 | D2 | b-f | Z-Φd | H | Do | ||
| BZ41W-16P(R) | 15 | 130 | 95 | 65 | 45 | 16-2 | 4-14 | 170 | 120 |
| 20 | 150 | 105 | 75 | 55 | 16-2 | 4-14 | 190 | 140 | |
| 25 | 160 | 115 | 85 | 65 | 16-2 | 4-14 | 205 | 160 | |
| 32 | 180 | 135 | 100 | 78 | 18-2 | 4-18 | 270 | 180 | |
| 40 | 200 | 145 | 110 | 85 | 18-3 | 4-18 | 310 | 200 | |
| 50 | 250 | 160 | 125 | 100 | 18-3 | 4-18 | 358 | 240 | |
| 65 | 265 | 180 | 145 | 120 | 18-3 | 4-18 | 373 | 240 | |
| 80 | 280 | 195 | 160 | 135 | 20-3 | 8-18 | 435 | 280 | |
| 100 | 300 | 215 | 180 | 155 | 20-3 | 8-18 | 500 | 300 | |
| 125 | 325 | 245 | 210 | 185 | 22-3 | 8-18 | 614 | 320 | |
| 150 | 350 | 280 | 240 | 210 | 24-3 | 8-23 | 674 | 360 | |
| 200 | 400 | 335 | 295 | 265 | 26-3 | 12-23 | 818 | 400 | |
| 250 | 450 | 405 | 355 | 320 | 30-3 | 12-25 | 969 | 450 | |
| 300 | 500 | 460 | 410 | 375 | 30-4 | 12-25 | 1145 | 560 | |
| 型號 | 公稱通徑DN | 尺寸 | |||||||
| L | D | D1 | D2 | D6 | b-f | Z-Φd | H | ||
| BZ41W-40P(R) | 15 | 130 | 95 | 65 | 45 | 40 | 16-2 | 4-14 | 135 |
| 20 | 150 | 105 | 75 | 55 | 51 | 16-2 | 4-14 | 190 | |
| 25 | 160 | 115 | 85 | 65 | 58 | 16-2 | 4-14 | 205 | |
| 32 | 180 | 135 | 100 | 78 | 66 | 18-2 | 4-18 | 270 | |
| 40 | 200 | 145 | 110 | 85 | 76 | 18-3 | 4-18 | 310 | |
| 50 | 250 | 160 | 125 | 100 | 88 | 20-3 | 4-18 | 371 | |
| 65 | 280 | 180 | 145 | 120 | 110 | 22-3 | 8-18 | 39 | |
| 80 | 310 | 195 | 160 | 135 | 121 | 22-3 | 8-18 | 455 | |
| 100 | 350 | 230 | 190 | 160 | 150 | 24-3 | 8-23 | 551 | |
| 125 | 400 | 270 | 220 | 188 | 176 | 28-3 | 8-25 | 628 | |
| 150 | 450 | 300 | 250 | 218 | 204 | 30-3 | 8-25 | 708 | |
| 200 | 550 | 375 | 320 | 282 | 260 | 38-3 | 12-30 | 885 | |
| 250 | 650 | 445 | 385 | 345 | 313 | 42-3 | 12-24 | 960 | |
| 型號 | 公稱通徑DN | 尺寸 | |||||||
| L | D | D1 | D2 | D6 | b-f | Z-Φd | H | ||
| BZ41W-64P(R) | 15 | 130 | 105 | 75 | 55 | 41 | 18-2 | 4-14 | 140 |
| 20 | 150 | 125 | 90 | 68 | 51 | 20-2 | 4-18 | 195 | |
| 25 | 160 | 135 | 100 | 78 | 58 | 22-2 | 4-18 | 210 | |
| 32 | 180 | 150 | 110 | 82 | 66 | 24-2 | 4-23 | 280 | |
| 40 | 200 | 165 | 125 | 95 | 76 | 24-3 | 4-23 | 328 | |
| 50 | 250 | 175 | 135 | 105 | 88 | 26-3 | 4-23 | 390 | |
| 65 | 280 | 200 | 160 | 130 | 110 | 28-3 | 8-23 | 410 | |
| 80 | 310 | 210 | 170 | 140 | 121 | 30-3 | 8-23 | 485 | |
| 100 | 350 | 250 | 200 | 168 | 150 | 32-3 | 8-25 | 590 | |
| 125 | 400 | 295 | 240 | 202 | 176 | 36-3 | 8-30 | 688 | |
| 150 | 450 | 340 | 280 | 240 | 204 | 38-3 | 8-34 | 768 | |
| 200 | 550 | 405 | 345 | 300 | 260 | 44-3 | 12-34 | 972 | |
| 250 | 650 | 470 | 400 | 350 | 313 | 48-3 | 12-41 | 1059 | |
中國.上玉集團有限公司是專業生產不銹鋼閥門的廠家,不銹鋼保溫閘閥訂貨須知:
一、①不銹鋼保溫閘閥產品名稱與型號②不銹鋼保溫閘閥口徑③不銹鋼保溫閘閥是否帶附件以便我們的為您正確選型。
二、若已經由設計單位選定的不銹鋼保溫閘閥型號,請按不銹鋼保溫閘閥型號直接向我公司銷售部訂購。
三、當使用的場合非常重要或環境比較復雜時,請您盡量提供設計圖紙和詳細參數,由我們上玉集團的專家為您審核把關。
感謝您訪問上玉集團公司網站,如有任何疑問您可以撥打我們的全國熱線電話:400-887-6587,我們一定會盡心盡力為您提供優質的服務。
2014-12-23
閥門市場需求擴大使不銹鋼閥門迎來新機遇2012-2-15
不銹鋼閥門的英文翻譯2012-1-9
不銹鋼閥門中不銹鋼球閥的安裝、使用及維護2012-1-8
上玉集團給不銹鋼閥門訂購者的一封信2012-1-7
不銹鋼閥門行業之不銹鋼截止閥的市場分析2012-1-7
上玉集團有限公司不銹鋼閥門產品2012-1-7
不銹鋼球閥與其他不銹鋼閥門相比較的優點2012-1-6
不銹鋼閥門廠家該如何應對不銹鋼閥門行業的潛規則2012-1-4
不銹鋼閥門不銹鋼材料的耐蝕性能2011-12-10
不銹鋼閥門的種類及用途